The Oxford Artisan Distillery Visitor Centre





The site for the proposed visitor centre of The Oxford Artisan Distillery (TOAD) is situated on top of South Park, within the curtilage of a Grade II listed trashing barn. The scheme proposed to restore the historic farm buildings and introduce distilling and alcohol manufacture.
The location of the proposed visitor centre in the southern corner of the site, sitting along the boundary with South Park, is a result of the layout of existing trees, root protection zones, stone walls of interest, existing buildings and a place that would best serve South Park by providing direct access to the restaurant and toilet facilities from the Park.
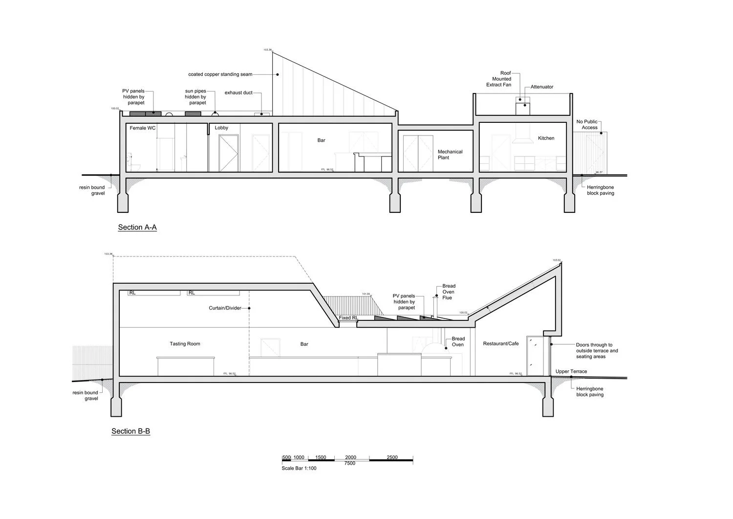
The mass and form have been designed to mimic the form of the existing Threshing Barn and Shelter Shed on the site, which are single story with pitched roofs.
The Visitor Centre essentially comprises three smaller single storey buildings with pitched roofs, which have ‘collided’ together to form the new buildings. This massing means that from certain prominent views in South Park the Visitor Centre appears to be just a single part of its three main components. This illusion intentionally keeps the apparent scale of the building down, while still enabling to be large enough to provide a multitude of amenities.